U gebruikt een verouderde internetbrowser.
We raden u aan om de meest recente internetbrowser te installeren voor de beste weergave van deze website.
Een internetbrowser die up to date is, staat ook garant voor veilig surfen.

Nobelstraat 20 / 05, 5051 DV Goirle
Huurprijs: € 975 /maand

Omschrijving

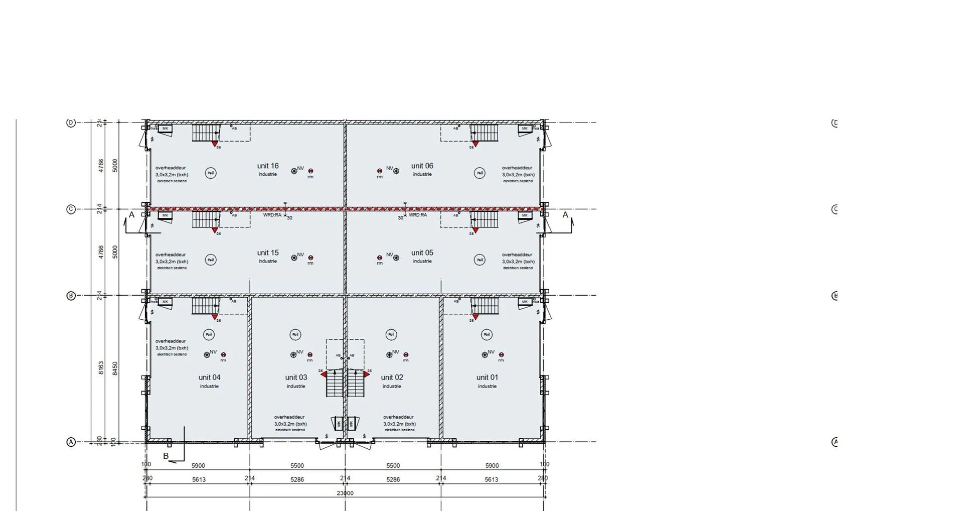
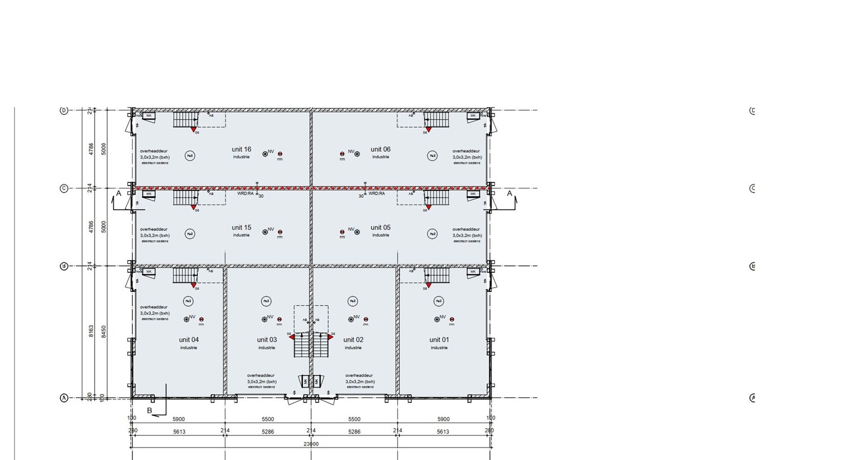
Hoogwaardige bedrijfsunit met 2 parkeerplaatsen, keuken en toilet, aan de Nobelstraat 20-05 (unit 16) te Goirle.

LOCATIE
Het bedrijfsverzamelgebouw is gesitueerd op bedrijventerrein 'Tijvoort'.
De verscheidenheid van bedrijven op dit bedrijventerrein en de goede aansluiting op het wegennetwerk maken Tijvoort tot een zeer goede vestigingslocatie. De Tijvoortsebaan, een belangrijke ontsluitingsweg binnen het bedrijventerrein Tijvoort, sluit aan op de de Turnhoutsebaan (N630). Deze verbindingsroute zorgt voor aansluiting op de snelweg A58 (Breda – Eindhoven) en Poppel (België). Tilburg is eveneens zeer goed bereikbaar. De Ringbanen zorgen voor een goede verbinding met de invalswegen richting het centrum van Tilburg.

LET OP! Autobedrijven, auto in en verkoop, autoreparatie en autopoetsbedrijven zijn niet toegestaan in deze bedrijfsunits.

OPLEVERINGSNIVEAU

OBJECT
Deze multifunctionele bedrijfsunit is onderdeel van een bedrijfsverzamelcomplex bestaande uit in totaal 24 representatieve bedrijfsunits. Het gasloze complex wordt naar verwachting eind 2025 opgeleverd. De bedrijfsunits zijn voorzien van kunststof kozijnen met dubbel glas, betonvloer, geïsoleerde wanden en een overheaddeur.
De units worden casco opgeleverd met een betonnen verdiepingsvloer over de gehele verdieping, kalkzandsteen tussenwanden, onderhoudsvrije kunststof deuren en raamkozijnen, roldeur met elektromotor, houten trap met traphekje en trapleuning, dak doorvoer voor een eventuele airco of zonnepanelen.
Inclusief 2 parkeerplaatsen.

Extra aanpassingen zijn op verzoek /in overleg met de eigenaar mogelijk.

OPPERVLAKTE
Begane grond: ca. 54 m²
Eerste verdieping: ca. 54m²
TOTAAL ca. 108 m²

HUURPRIJS
€ 975,- per maand; indien van toepassing te vermeerderen met BTW.

VvE
Voor de opstalverzekering. het onderhoud van terrein en van het dak wordt een Vereniging van Eigenaren (VvE) opgericht.
De servicekosten zullen ca. € 50 tot € 60 per maand bedragen.

INDEXERING
Jaarlijkse indexering voor het eerst één jaar na huuringangsdatum op basis van de Consumenten Prijs Index (CPI) Alle Huishoudens (2006=100) samengesteld door het Centraal Bureau voor de Statistiek.

VERBRUIKSKOSTEN
De kosten van gas, water en elektra zijn niet bij de huurprijs inbegrepen. Deze kosten dienen door huurder rechtstreeks aan de desbetreffende leveranciers te worden voldaan.

OPLEVERING
De oplevering geschiedt in onderling overleg.

VOORBEHOUD
Een en ander geschiedt onder aanvaarding en uitdrukkelijk voorbehoud goedkeuring eigenaar.

Alle door ons verstrekte informatie is geheel vrijblijvend. Alle gegevens zijn met zorg samengesteld en uit ons inziens betrouwbare bron afkomstig. Ten aanzien van de juistheid ervan kunnen wij echter geen aansprakelijkheid aanvaarden.


Kenmerken

Algemeen

Adres:Nobelstraat 20-05
Goirle
Huurprijs:€ 975/maand
Type:Bedrijfsruimte
Beschikbaar vanaf:In overleg
Bouwjaar:2025
Inhoud:430 m³

Indeling


Bedrijfshal:
Oppervlakte:54 m²
In units vanaf:0 m²
Vrije hoogte:3,7 m

Bedrijfsruimte - kantoorruimte:
Oppervlakte:54 m²
Bouwlagen:2

Comfort

Raamwerk:Kunststof
Dak:Plat dak
Beglazing:Hoogrendementsglas
Isolatie:Volledig geïsoleerd

Kadastrale gegevens

Kad. gemeente:Goirle
Indexnummer:16

Ligging

Streetview

Neem vrijblijvend contact op

Wenst je meer informatie of wilt je een bezoekmoment inplannen? Neem vrijblijvend contact met ons op voor meer informatie. 
Wanneer wij jouw aanvraag hebben ontvangen zullen wij verder contact met je opnemen. 


U moet akkoord gaan met het privacybeleid van deze website
* Verplicht in te vullen

Niet gevonden wat u zocht?

Schrijf u dan vrijblijvend in op onze nieuwsbrief en blijf op de hoogte van ons meest recente aanbod!
 
Schrijf u in
Terug naar boven
Sluit menu Loever Makelaardij