U gebruikt een verouderde internetbrowser.
We raden u aan om de meest recente internetbrowser te installeren voor de beste weergave van deze website.
Een internetbrowser die up to date is, staat ook garant voor veilig surfen.

Helaas, dit pand is verkocht

5046 NK Tilburg

Omschrijving

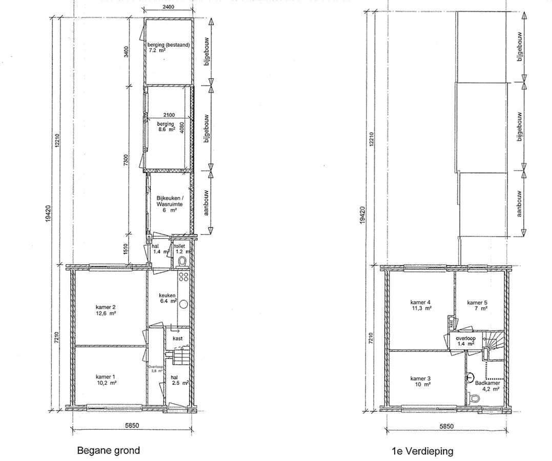
KAMERVERHUURPAND MET KAMERVERHUURVERGUNNING VOOR 5 KAMERS

De woning is goed onderhouden en netjes afgewerkt met een mooie keuken en badkamer.
Ruime bijkeuken en berging aanwezig.
Kamers beneden dienen nog te worden gemaakt middels het plaatsen van wanden.
Boven zijn de kamers reeds gerealiseerd. Een andere indeling is ook mogelijk.
Voor meer informatie en plattegronden graag bellen of mailen naar ons kantoor.


Niet gevonden wat u zocht?

Schrijf u dan vrijblijvend in op onze nieuwsbrief en blijf op de hoogte van ons meest recente aanbod!
 
Schrijf u in
Terug naar boven
Sluit menu Loever Makelaardij